物件詳細
| 所在地 | 沿線・最寄駅 | バス(分) 徒歩(分) |
価格 (万円) |
間取り / 築年月 |
専有面積(m2) |
|---|---|---|---|---|---|
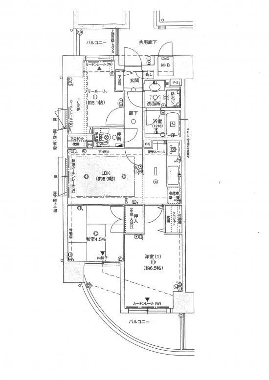
| 大阪市淀川区宮原2-10-3 | 大阪メトロ御堂筋線「東三国」駅 | 5 | 3,280万円 | 1SLDK/ 2000年2月 |
55.03 |







| 建物名 | セレッソコート新大阪シティ |
|---|---|
| 所在地 | 大阪市淀川区宮原2-10-3 |
| 沿線・最寄駅 | 大阪メトロ御堂筋線「東三国」駅 |
| バス (分)/徒歩(分) | 5 |
| 価格(万円) | 3,280万円 |
| 管理費/修繕費 | 8,420円/14,580円 |
| ランニングコスト | 運営協力金:月額1,000円 |
| 専有面積(m2) | 55.03 |
| 階層/階 | 鉄筋コンクリート造11階建の12階部分 |
| 間取り内訳 | 1SLDK |
| 土地権利 | 所有権 |
| 築年月 | 2000年2月 |
| 総戸数 | 39戸 |
| 管理形態/方式 | 日勤管理 |
| 現状 | 賃貸中(月額125,000円(共益費込)) |
| 引き渡し | 相談 |
| 諸条件・相談 | 敷金預り金:125,000円(持ち回り)図面は新築時のもので現況とは異なります。 |
| 年間予定賃料収入 | 1,500,000円 |
| 利回り | 約4.57% |
●お問合せフォーム